Stevenson & Cumming (Portadown) Ltd

Adjacent & West Of 148, Red Lion Road, Loughgall, Kilmore, Armagh BT61 8PE

Building Site (with FPP) For Sale

Offers over £150,000

Print additional images & map (disable to save ink)

Photo 1 of Adjacent & West Of 148, Red Lion Road, Loughgall, Kilmore, Armagh

Telephone:

028 3835 0883

View Online:

www.stevensonandcumming.com/1070711

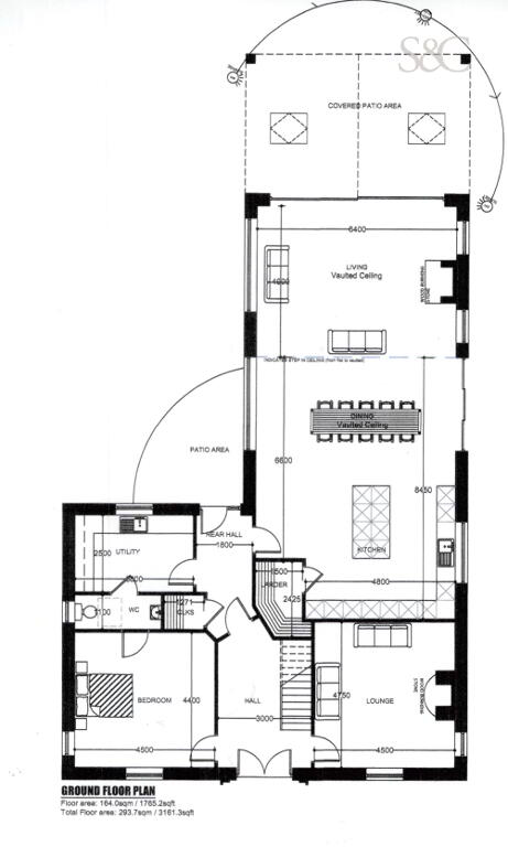
Rarely does a site with full planning permission come to the market, in this sought after location in Co. Armagh. This stunning 5 Bedroom Detached home offers modern living of 293.7 sq m / 3161.3 sq ft accommodation, with additional detached Garage, with first floor option. Thoughtfully designed floor plans are included to view, demonstrating the excellent layout and maximising the desirable southern aspect to the rear, where the generous kitchen/dining/living space open to the outdoors. Set on a substantial plot of approximately 1.33 Acres, this is a superb opportunity to create the home of your dreams.

Key Information

Address Adjacent & West Of 148, Red Lion Road, Loughgall, Kilmore, Armagh
Price Offers over £150,000
Land type Building Site (with FPP)
Size 1.33 acres
Planning Full Planning Permission
Status For sale

Features

  • Full Planning for Stunning Detached Property, Circa 293.7 sq m / 3161.3 sq ft
  • Additional two storey garage 112 sq m/1205 sq ft
  • Full planning granted 28 February 2025, Ref: LA08/2024/0601/F
  • Circa 1.33 Acres
  • Situated adjacent to 'Annahugh House', a 300 year old period residence
  • Purchaser responsible for stock proofing site & checking availability of services. Draft transfer map will be provided prior to completion

Additional Information

Measurement of Property From FPP Floor Plans, (LA08/2024/0601/F)

 

House Ground Floor Accommodation

Lounge: 4.5 x 4.75 m

Kitchen/Dining: 6.40 x 8.45 @wp open plan to Living with Vaulted Ceiling 6.4 x 4.9 m

Larder off Kitchen

Ground Floor front Bedroom 5/Office: 4.5 x 4.4 m

access to shared WC

Utility: 3.8 x 2.5 m, with access to shared WC

Floor Area ground floor: 164.0 sq m / 1765.2 sq ft

 

House First Floor Accommodation

Master Bedroom: 6.4 x 4.0 m

Walk in Wardrobe: 1.9 x 2.375 m

En-Suite: 3.2 x 2.0 m

Bedroom 2: 3.5 x 4.175 m

En-Suite: 2.675 x 2.1 m

Bedroom 3: 4.5 x 3.925 m

Bedroom 4: 4.5 x 3.30 m

Bathroom: 3.2 x 3.33 m

Floor Area first floor: 129.7 sq m / 1396 sq ft

 

TOTAL FLOOR AREA HOUSE: 293.7 sq m / 3161.3 sq ft

 

 

Detached Garage

Ground Floor: 8.0 x 7.0 m, (56 sq m / 602.7 sq ft)

First Floor:       8.0 x 7.0m,  (56 sq m / 602.7 sq ft)

Total Floor Area Garage: 112.0 sq m / 1205.5 sq ft)

 

 

 

Computer-generated Images  

Please note, these are for illustrative purposes only and should be treated as general guidance. TComputer generated images do not constitute a contract, part of a contract or a warranty.

 

 

Travelling times to Red Lion Road, Kilmore, Armagh, BT61 8P

  • Portadown, 10 Minutes
  • Stonebridge Roundabout, 7 Minutes
  • Armagh, 12 Minutes
  • Moy, 11 Minutes
  • M1, Junction 13, 9 Minutes
  • Belfast, 53 Minutes
  • Belfast International Airport, 53 Minutes

 

 

Directions

From Portadown take the Loughgall Road /B77 and travel for 5.6 miles. Alternatively from the Stonebridge Roundabout, take the Kilmore Road for 2 miles, then left onto the Red Lion Road /B77 for another 2.1miles. Finally from Armagh take the Loughgall Road/B77 and travel for 6.2 miles. Signage marks location of site.

  • Stevenson & Cumming (Portadown) Ltd

    Stevenson & Cumming (Portadown) Ltd

    028 3835 0883

Photo Gallery

Photo 1 of Adjacent & West Of 148, Red Lion Road, Loughgall, Kilmore, Armagh Photo 2 of Adjacent & West Of 148, Red Lion Road, Loughgall, Kilmore, Armagh Photo 3 of Adjacent & West Of 148, Red Lion Road, Loughgall, Kilmore, Armagh Photo 4 of Adjacent & West Of 148, Red Lion Road, Loughgall, Kilmore, Armagh Photo 5 of Adjacent & West Of 148, Red Lion Road, Loughgall, Kilmore, Armagh Photo 6 of Adjacent & West Of 148, Red Lion Road, Loughgall, Kilmore, Armagh Photo 7 of Adjacent & West Of 148, Red Lion Road, Loughgall, Kilmore, Armagh Photo 8 of Adjacent & West Of 148, Red Lion Road, Loughgall, Kilmore, Armagh Photo 9 of Adjacent & West Of 148, Red Lion Road, Loughgall, Kilmore, Armagh Photo 10 of Adjacent & West Of 148, Red Lion Road, Loughgall, Kilmore, Armagh Photo 11 of Adjacent & West Of 148, Red Lion Road, Loughgall, Kilmore, Armagh Photo 12 of Adjacent & West Of 148, Red Lion Road, Loughgall, Kilmore, Armagh Photo 13 of Adjacent & West Of 148, Red Lion Road, Loughgall, Kilmore, Armagh

Location

Visit www.stevensonandcumming.com for further details.